戸建・マンション売り買いナビ 三原、尾道、福山、府中、笠岡

水呑町 デザイナーズ住宅

担当者のおすすめコメント!

2021年築のデザイナーズ住宅♪
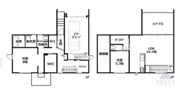
2階部分のLDKと繋がるインナーテラスが特徴的な住宅です!
カーポート付きの駐車場2台+インナーガレージ付きで大切なお車を雨風から守ることができます!
お子様の遊び場やBBQなども楽しめる広々お庭スペースあり

【周辺施設】
・広島県立福山商業高校まで徒歩約9分
・ハローズ水呑店まで徒歩約14分
・セブンイレブン福山水呑南新田店まで徒歩約11分
・日之出ヶ丘公園まで徒歩約3分

  • 価格
    3,380万円
  • 所在地
    福山市水呑町
  • 間取り
    3SLDK
  • 延床面積
    118.5㎡/35.84坪
  • 土地面積
    242.46㎡ / 73.34坪
  • 交通
    『日の出が丘』バス停より徒歩約4分
  • 新築年月
    2021年10月
  • 構造・階数
    木造二階建
  • 種別
    中古戸建て
  • 都市計画
    市街化区域
  • 用途地域
    第一種住居地域
  • 建ペイ率
    60%
  • 容積率
    200%
  • 土地権利
    所有権
  • 地目
    宅地
  • 設備
    上水道・下水道・オール電化
  • 道路幅員
    北側 幅員約5.0m 私道位置指定有
  • 駐車場
    3台可能
  • 小学校区
    水呑小学校区
  • 中学校区
    向丘中学校区
  • 取引態様
    仲介
  • 引渡し日
    相談