【新着】新築物件 幕山台8丁目戸建ご紹介

『子育て世帯が暮らしやすい家を』
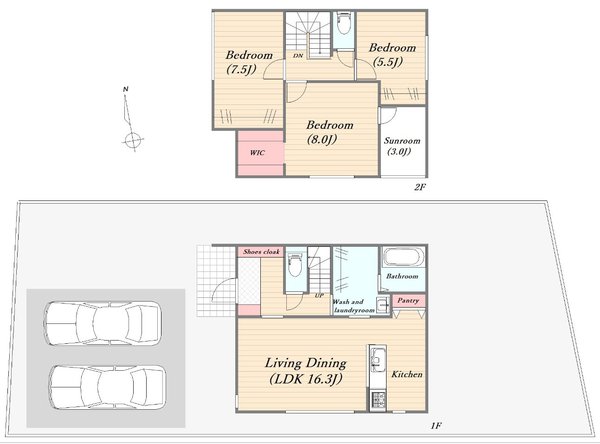
○家事らく動線
 バスルームや洗面室、キッチンなどの水まわりを近くに配置することでムダな動きを省くことができます。
○洗濯らくらく!ランドリールーム・サンルーム
 雨の日、リビングや寝室のカーテンレールに洗濯物をぶら下げて部屋中いっぱい!
 なんてことはありませんか?
 そんな時ランドリールームがあれば、雨の日続きで洗濯物がたまるというストレスから解放されます。
○安心して暮らせる!防犯設備
 HESTA スマート家電による防犯パッケージ
 スマート屋外カメラ・室内カメラ・スマート玄関ドア・窓センサー
○豊富な収納
 リビング収納はもちろん、キッチンにはパントリーを完備
○地震に強い家
 地震の揺れを最大88%軽減するブレースリーK型を採用
○安心の長期保証&無償定期点検
 長期50年保証・新築住宅かし保証(10年)

その他たくさんの想いが詰まったお家です。

1.jpg

9.jpg

2.jpg

4.jpg

詳細はこちらから
【ルル―ディア】幕山台8丁目①号棟 | 戸建・マンション売り買いナビ | 福山 尾道 三原で不動産情報(一戸建て・マンション・土地・賃貸)山陽不動産

物件に関するお問合せはお気軽に山陽不動産まで♪

~☆~☆~☆~☆~☆~☆~☆
福山市東町三丁目10番5号
有限会社 山陽不動産
TEL:084-921-2778
投稿者:佐藤
~☆~☆~☆~☆~☆~☆~☆

カテゴリー